
projekt wykonawczy – modernizacji instalacji grzewczych obsługujących zabytkowy budynek Narzędziowni zakładu produkcyjnego Eaton Truck Components Sp. z o.o. 30 Stycznia 55, 83-110 Tczew. Integracja istniejącej sieci cieplnej zakładu z potrzebami modernizowanego budynku.
Eaton jest firmą zajmującą się inteligentnym zarządzaniem energią, zaangażowaną w ochronę środowiska naturalnego i poprawę jakości życia ludzi na całym świecie.
Wykorzystano zdjęcie Street View

projekt wykonawczy – wentylacji mechanicznej nawiewno – wywiewnej z odzyskiem ciepła, wentylacji technoogicznej produkcji w tym malarni, instalacji klimatyzacji oraz ogrzewania dla budynku biurowego oraz zakładu produkcyjnego
ATM Lighting to polski producent oświetlenia przemysłowego specjalizujący się w oprawach przeznaczonych do trudnych warunków pracy. Spółka została założona w 2011 roku. Silna pozycja firmy leży w doświadczeniu oraz rozwiniętych technologicznie rozwiązaniach oświetlenia przeciwwybuchowego i wandaloodpornego dedykowanego infrastrukturze kolejowej i więziennictwu.
Wykorzystano zdjęcie Street View

projekty wykonawcze – instalacja chłodzenia, wody/osmozy, instalacja sprężonego powietrza, wentylacji mechanicznej dla maszyn drukarskich
2024 lipca WestRock i Smurfit Kappa połączyły się, aby stać się Smurfit Westrock, światowym liderem w dziedzinie zrównoważonych opakowań. Smurfit Westrock działa w 402 krajach z ponad 500 zakładami produkcyjnymi na całym świecie i ponad 100 000 członkami zespołu.

projekty wykonawcze – instalacja wentylacji mechanicznej i klimatyzacji i ogrzewania wraz ze źródłem ciepła. Hala J i H wraz z budynkiem biurowym i show room.
Sunreef Yachts jest światowym liderem w projektowaniu i konstrukcji Luksusowych katamaranów żaglowych oraz motorowych. Każdy katamaran zwodowany przez Sunreef Yachts to idealne połączenie luksusu, stylu i komfortu. Każda jednostka personalizowana jest wedle życzeń właściciela, począwszy od rysunków, poprzez budowę aż po najdrobniejsze szczegóły wykończenia.
Wizualizacja – Oficjalne materiały udostępnione dla prasy

Projekt techniczny/wykonawczy instalacji wewnętrznych klimatyzacji i ogrzewania klimatyzacją z rozprowadzeniem powietrza. Projekt przewiduje zapewnienie całorocznie warunków komfortu dla pracowników linii produkcji domów modułowych. Rozprowadzenie powietrza przy użyciu 64 kanałów tekstylnych.
13 zestawów VRF o łącznej mocy chłodniczej 1,3MW
Sendom to producent energooszczędnych domów prefabrykowanych w systemie drewnianej konstrukcji szkieletowej, a to oznacza, że sam montaż budynku trwa około trzech dni!

Projekt techniczny/wykonawczy instalacji wentylacji mechanicznej i klimatyzacji dla Hali Krojownia/Szwalnia
Projekt przewiduje modernizację obecnej instalacji mając na celu poprawę warunków pracy pracowników w okresie całego roku.
MARIPOL MEBLE to innowacyjne przedsiębiorstwo specjalizujące się w produkcji mebli tapicerowanych. Tworzymy meble dla każdego: rodziny, młodzieży, firm czy instytucji. MARIPOL MEBLE należy do międzynarodowej Grupy POLIPOL i jest jednym z większych pracodawców w województwie pomorskim.

projekt techniczny – instalacja klimatyzacji apartamentów i powierzchni usługowej
Jaskółcza to nowa inwestycja z mieszkaniami, apartamentami inwestycyjnymi i lokalami usługowymi. Powstaje w historycznej części śródmieścia i jest realizowana pod nadzorem konserwatora zabytków. Stanowi część projektu Partnerstwa Publiczno-Prywatnego (PPP), którego celem jest rewitalizacja dzielnicy.

projekt wykonawczy – Modernizacja systemu ogrzewania wraz z analizą źródła ciepła
Zabytkowy kościół rektorski, leżący w granicach parafii św. Brygidy archidiecezji gdańskiej. Stare Miasto, między obecną ul. Elżbietańską a Podwalem Grodzkim. Początkowo kaplica związana z powstałym w 1394 Szpitalem Św. Elżbiety. Zgody na wzniesienie kaplicy udzielił 15 III 1394 wielki mistrz krzyżacki Konrad von Jungingen w przywileju fundacyjnym szpitala.
Projekt wykonawczy tego zabytkowego obiektu zakładał całkowitą wymianę instalacji ogrzewania i zaprojektowanie ogrzewania podławkowego. Analiza źródła ciepła oraz współpraca z Konserwatorem Zbytku pozwoliła na zachowanie charakteru i walorów obiektu a także na demontaż wcześniejszego ogrzewania w oparciu o aparaty grzewczo wentylacyjne.

projekt techniczny – instalacje wentylacji mechanicznej i klimatyzacji, ogrzewania i wod-kan
Xtreme Fitness Gyms to dynamicznie rozwijająca się sieć klubów fitness i siłowni, która powstała w 2012 roku.
Projekt zakładał przebudowę obiektu biurowego na obiekt użyteczności publicznej – salonu fitness. W ramach projektu wykonano również włączenie instalacji grzewczych i CWU do istniejącego źródła ciepła wraz z niezbędnym opomiarowaniem.

projekt techniczny – instalacje wentylacji mechanicznej i klimatyzacji, ogrzewania i wod-kan wraz z podłączeniem do istniejącej sieci wod-kan
Przebudowa oraz zmiana sposobu użytkowania budynku dawnej hali produkcji oprzyrządowania (40A) Stoczni Cesarskiej na Centrum Kultury „Hala Radość”. Przewidywany sposób użytkowania projektowanego centrum kultury obejmuje następujące podstawowe funkcje:
funkcja kultury – pomieszczenia szkoleniowe, sala koncertowa,
funkcja socjalna – pomieszczenia higieniczno-sanitarne,
funkcja techniczna – pomieszczenia służące do obsługi obiektu.

projekt techniczny – instalacja wody bytowej wraz ze źródłem ciepła i wody pożarowej, instalacja kanalizacji
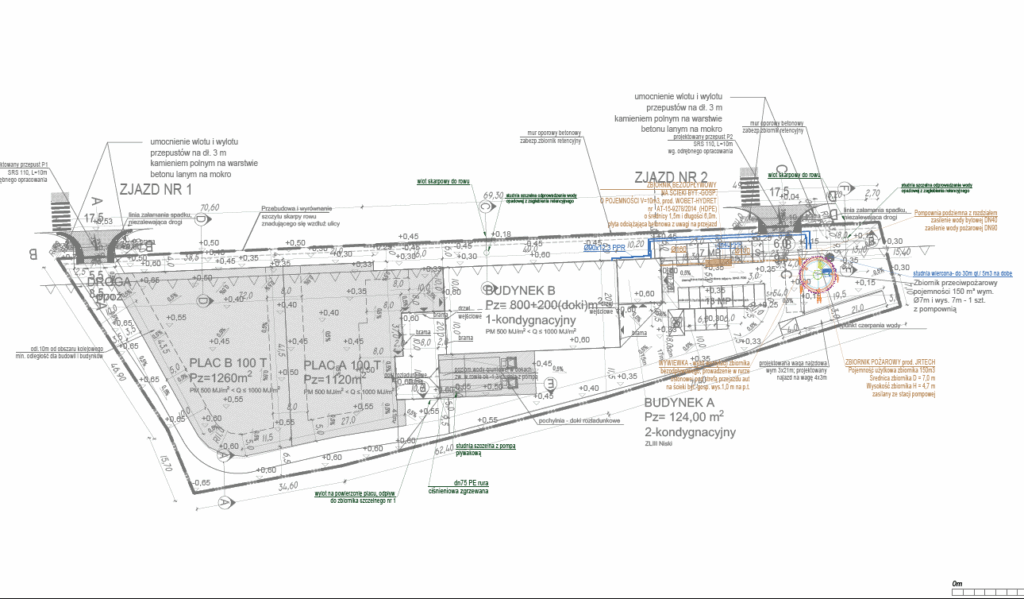
Przebudowa wraz ze zmianą sposobu użytkowania budynków gospodarczych na budynek hotelowy wraz z niezbędną infrastrukturą techniczną na dz. nr 22/5 w Stanisławiu.
Stanisławie to stara, kociewska wieś położona w pobliżu Tczewa i drogi do Trójmiasta. Na jej obrzeżach, w budynku dawnej owczarni tamtejszego pałacu powstały Oklaski- miejsce spotkań.
Niezwykły pejzaż dawnych, przypałacowych zabudowań i wiekowego założenia parkowego sprawił, że zrodziła się idea stworzenia przestrzeni łączącej szacunek do historii i nową jakość. Przywróciliśmy więc blask czerwonej cegle i stolarce, zadbaliśmy o niezwykły ogród, zachowaliśmy przestrzenność wnętrza. Dobrze poczują się tu ci, którzy cenią sobie bezpretensjonalność i piękno architektury, krajobrazu i detalu.
Zdjęcie ze strony https://oklaskistanislawie.pl/

Projekt wykonawczy wentylacji i klimatyzacji obiektu dydaktycznego oraz sali sportowej i widowiskowej
Szkoła rozwijająca pasje uczniów, indywidualne podejście do każdego ucznia, codzienne zajęcia z języka angielskiego, bezpłatne zajęcia dodatkowe – szachy, robotyka, karate, eksperymenty, taniec

projekty wykonawcze – instalacje wentylacji mechanicznej i klimatyzacji, ogrzewania
Delikatesy Max Xavier to polska sieć sklepów spożywczych, które znajdują się w Trójmieście i na Kaszubach.
Wykorzystano zdjęcie Street View

projekt techniczny – instalacje wentylacji mechanicznej i klimatyzacji, ogrzewania, instalacja wewnętrzna i zewnętrzna gazu i wod-kan, PZT
Jeden z pawilonów Handlowych Biedronka EF650”, zlokalizowany w Dąbkach.
Jerónimo Martins Polska S.A. jest właścicielem Biedronki – największej sieci detalicznej w Polsce, posiadającej sklepy zlokalizowane w ponad 1300 miejscowościach, która jest obecna na polskim rynku od 29 lat. Na koniec I kwartału 2024 roku posiadała 3 596 placówek.
Wizualizacja autorstwa “3D Projekt” Kamil Kostrzewa

projekty techniczne – instalacje wentylacji mechanicznej i klimatyzacji, ogrzewania, instalacje wod-kan
Wiele pawilonów Handlowych Rossmann zlokalizowanych w północnej części Polski. Rossmann oferuje Klientom najwyższej jakości produkty, zgodne ze światowymi trendami, oraz znane i lubiane marki dostępne wyłącznie w Rossmannie (np. Isana, Alterra, Domol, Alouette).
Wykorzystano zdjęcie pawilonu w Toruniu na ul. Szerokiej

projekty wykonawcze – instalacje wentylacji mechanicznej i klimatyzacji, ogrzewania
Grupa Bufab jest dystrybutorem odznaczających się wysoką jakością i identyfikowalnością elementów złącznych dla przemysłu stoczniowego oraz wydobywczego ropy naftowej i gazu oraz petrochemicznego.
Wykorzystano zdjęcie Street View

projekt techniczny – Instalacje sanitarne: kanalizacja, woda, ogrzewanie, PV wraz ze źródłem ciepła – biura i magazyn
Firma ALTONGROUP zajmuje czołowe miejsce na rynku exportowym drewna okrągłego i przetworzonego , począwszy od 1999 roku.